???? ?? 全國免費咨詢熱線:17317317121(微信同號)松夏減震器,安全又耐用

JGD-4型離心泵橡膠減震器

發布時間:2020-11-14 16:59

JGD-4型離心泵橡膠<a href='//yslawer.cn' target='_blank'><u>減震器</u></a>簡介
JGD-4型離心泵橡膠<a href='//yslawer.cn' target='_blank'><u>減震器</u></a>產品圖

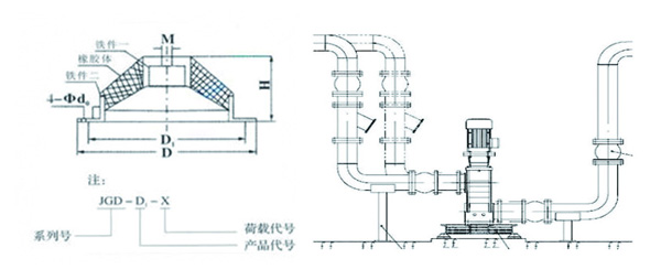
  JGD型橡膠剪切隔振器是由合成橡膠和內置金屬件組成,經過硫化ꦯ成圓錐體,橡💖膠部分受剪切力、具有較大的變形范圍和較低的固有頻率。

  工作溫度范圍在-5oC--+50oC,溫度變化時,剛度也有所變🎉化;阻尼比C/C0&ꦛgt;0.07。

  我廠生產的JGD型橡膠剪切൲隔振器選用優質天然橡膠,云象**標1#天💙然橡膠,含膠量達到46%左右,具有良好的減震和降噪效果。

  JGD橡膠剪切橡膠減震器尺寸圖:

JGD-4<a href='//yslawer.cn' target='_blank'><u>橡膠減震器</u></a>結構圖
JGD-4橡膠減震器參數圖

產品介紹

橡膠減震器之所以如此被廣泛的運用,是因為它有效的利用了橡膠的如下諸多特性:

(1)橡膠具有高彈性和黏彈性;

(2)與鋼鐵材質相比,橡膠的彈性變形很大,彈性模量很小;

(3)橡膠的沖擊剛度大于動剛度,動剛度又大于靜剛度,有利于減少沖擊變形和動態變形;

(4)應力-應變曲線為橢圓形滯♛后線,其面積等于各個震動周期轉變為熱量的振能(阻尼),可通過配方設計調整之;

(5)橡膠為不可壓縮性材料(泊松比為0.5);

(6)橡膠形狀可以自由選擇,硬度可以通過配方設計加以調整,可以滿足不同方向的剛度和強度的要求。

突出優勢

載荷范圍

載荷范圍:245N-35040N;位移范圍有二種:🐭0-75mm、0-150mm; 🅷

結構

結構采用外挑管,消除音隙非常方便,且有螺紋防松設置;

連接管

長短連接管采用左右螺紋,安裝距🧸離詷量為40mm,且可現場調整,并設有螺紋防松設置;

間隙小

兩端接口采用鉸接,有效地消除了雙向使用時的間隙;

載荷刻度

上刻度板上增設了載荷指示刻度,使調節載荷、工作載荷一目了然。

產品作用

為了減少前面提到𝓀的路面對車輛的振動和沖擊,需要彈簧把這些吸收振動和沖擊的能量,彈簧在懸架中就是一個儲能元件,但是暫時儲存起來還不行,還要把這些對車輛乘坐舒適性和操縱穩定性不利的能量消耗掉,這是就輪到減振器登場了,液壓式減振器的工作原理是當車架與車橋作往復相對運動,而活塞在缸筒內往復運動時,減振器殼體內的油液便反復地從一個內腔通過一些窄小的孔隙流入另一內腔,此時,孔壁與油液間的摩擦及液體分子內摩擦便形成對振動的阻尼力,使車身和車架的振動能量轉化為熱能,而被油液和減振器殼體所吸收,然后散到大氣🐬中。簡單的說就是,將動能轉化為熱能。如果減振器在試驗臺連續運轉幾分鐘,減振器貯油缸外壁會變得非常熱,甚至燙手。

與JGD-4型離心泵橡膠減震器相關的文章

開車如何保護kw電感減震器質量好嗎?

開車𒈔如何保護kw電感減震器質量好嗎?空氣彈簧減震器承受載荷變🐈化,系統固有頻率大致不變,因此具有變剛度特性,所以在隔振裝置設計時不必過重考慮設備重心承載能力大,自身重量…

松江波紋減震器需換一個行嗎?

松江波紋減震器需換一個行嗎?美標限位伸縮器是采𝓀用ANSI/ASMEB16.5法蘭標準加工制作的限位伸縮接頭或者傳力接頭產品,適用于輸送海水、淡水、冷熱水、飲用水、生活污水、原油、燃油…

豐田佳美用什么貝斯特減震器安裝說明書

豐田佳美用什♉么貝斯特減震器安裝說明書減震器通過空氣實驗后,應進行氣密性實驗,實驗介質為枯燥、潔凈的💎空氣,也可根據用戶需求運用氮氣或其它惰性氣體,測驗設備為電動泵(或…

如非注明文章皆由專業的減震器廠家“上海松夏”原創,轉載請注明出處! 文章地址://yslawer.cn/xjjzq/733.html
下一篇:沒有了

相關產品

相關新聞推薦

服務熱線:17317317121

公司地址:上海寶山區園康路255號1號樓A區三層

上海松夏減震器有限公司是一家專業生產減震器系列產品的廠家,♈我們為您提供金屬軟管圖片、參數、價格、工作原理、基本結構、產品分類、產品特點、安裝方法、主要問題、應用領域等相關資料,如果您有任何問題歡迎您撥打我公司的服務熱線!

Copyright ? 上海松夏減震器有限公司 yslawer.cn