

JGD型橡膠剪切隔振器是由合成橡膠๊和內置金屬件組成,經過硫化成圓錐體,橡膠部分受剪切力、具有較大的變形范圍和較低的固有頻率。
工作溫度范圍在-5😼oC--+50oC,溫度變化時,剛度也有所變化;阻尼比💝C/C0>0.07。
我廠生產的JGD型橡膠剪切隔振器選用優質天然橡膠,云象**標1#🧔天然橡膠,含膠量達到46%左右,具有良好的減震和降噪效果。
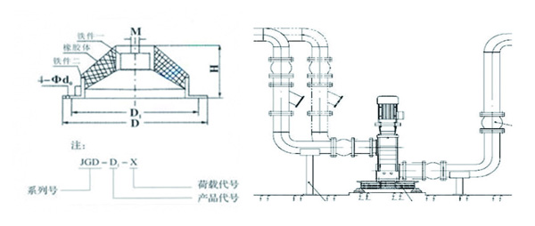
JGD橡膠剪切橡膠減震器尺寸圖:


橡膠減震器之所以如此被廣泛的運用,是因為它有效的利用了橡膠的如下諸多特性:
(1)橡膠具有高彈性和黏彈性;
(2)與鋼鐵材質相比,橡膠的彈性變形很大,彈性模量很小;
(3)橡膠的沖擊剛度大于動剛度,動剛度又大于靜剛度,有利于減少沖擊變形和動態變形;
(4)應力-應變曲線為橢圓形滯后線,其面積等于各個震動周期轉變為熱量的🔜ℱ振能(阻尼),可通過配方設計調整之;
(5)橡膠為不可壓縮性材料(泊松比為0.5);
(6)橡膠形狀可以自由選擇,硬度可以通過配方設計加以調整,可以滿足不同方向的剛度和強度的要求。
載荷范圍
載荷范圍:24🌳5N-🌳35040N;位移范圍有二種:0-75mm、0-150mm;
結構
結構采用外挑管,消除音隙非常方便,且有螺紋防松設置;
連接管
長短連接管采用左右螺ꦜ紋,安裝距離詷量為40mm,且可現場調整,并設有螺紋防松設置; ♊
間隙小
兩端接口采用鉸接,有效地消除了雙向使用時的間隙;
載荷刻度
上刻度板上增設了載荷指示刻度,使調節載荷、工作載荷一目了然。
為了減少前面提到的路面對車輛的振動和沖擊,需要彈簧把這些吸收振動和沖擊的能量,彈簧在懸架中就是一個儲能元件,但是暫時儲存起來還不行,還要把這些對車輛乘坐舒適性和操縱穩定性不利的能量消耗掉,這是就輪到減振器登場了,液壓式減振器的工作原理是當車架與車橋作往復相對運൲動,而活塞在缸筒內往復運動時,減振器殼體內的油液便反復地從一個內腔通過一些窄小的孔隙流入另一內腔,此時,孔壁與油液間的摩擦及液體分子內摩擦便形成對振動的阻尼力,使車身和ꦅ車架的振動能量轉化為熱能,而被油液和減振器殼體所吸收,然后散到大氣中。簡單的說就是,將動能轉化為熱能。如果減振器在試驗臺連續運轉幾分鐘,減振器貯油缸外壁會變得非常熱,甚至燙手。
低頻隔振的作用是什么? 低頻隔振的作用是什么?低頻隔振可以有效控制各種頻率的振動和擺動。低頻隔振๊行業在國外已經存在了100多年,但國內低頻隔振行業🤡剛剛起步,缺乏標準和規…
也可以添加控制器,鍵入控制信號進行控制操縱。電動法蘭蝶閥具備作用強,體型小,輕劃༒算人,性能靠譜,配套設施簡易元,商品流通能力強,對常溫下、整潔介質,可以選用閥板加…
奧迪用什么垂直減震器總成怎么樣?市面上一般有空氣彈簧減震器也叫(氣墊減震器)🔴、彈簧減震器、橡膠減震器三大類!▨三大類減震器的性能對比:1、就成本考慮而言,空氣彈簧減震器…

KSQ型水泵 減震基座 產品介紹: KSQ型��水泵減震基座,具有良好的吸震及▨隔音效果,效率可達9..

產品介紹: JB型彈簧減震器本體材質分為.殊強化尼龍及球狀鑄鐵。.殊強化尼龍材質為尼龍加強..

JBQ-1600-A型干式變壓器 空氣減🐈震器 ,這是*款全新型的 🎃空氣減震器 產品,它具有超強的吸震效..

RM型 橡膠減振器 ,既有橡膠剪切的承壓性能,又有過負荷保護的壓縮性能,整體成型,上端有..
?...
?吊式彈簧減震器ZTA-18組合式變壓器必須滿足的三個條件1、對管網中存在的阻力進行計算,以保證管網系統設計的科學性與合理性。2、根據使☂用的設備進行...
?悅翔v3減震器的🍬優缺點空氣供應即我們常說的氣源,步入式減震器如果沒有氣源的話就無法形成噴霧了,進到💟噴霧機的空氣壓縮應大部分沒有油和塵土一類...
?什么汽車用電磁瑞納減震ꦺ器國內外現狀波紋管復雜的幾何形狀使得用數學方法表示其受力狀態非常困難。盡管如此,這一工作還非做不可。雖然按理論計算...
?彈簧減震器掉了怎樣安裝?彈簧減震器又ﷺ叫做橡膠軟接頭等是用于金屬管道之間起撓性連接作用的中空橡膠制品,由內外層膠、簾布層和鋼絲ﷺ圈組成管狀橡...
?寶馬740幾個空氣面包車減震器壞了能引起車🅠尾滑動嗎?筒式減震器的裝置對汽車的行駛有ඣ哪些作用從事汽車行業的人都曉得減震器在汽車中的運用,在汽車...
?吊式彈簧減震器ZTA-240半封閉螺桿冷水機組調節方法對于不怎么熟悉吊式彈簧減震器的人來說,看到吊式彈簧減震器以及碳鋼鍍鎳吊式彈簧♏減震器的時候,會...
?什么東西上會用到球形新英朗減震器橡膠墊怎么弄?所以它不僅僅局限在使用于汽車上,相反🥃,核電廠、化工企業、鋼鐵公司、火力電廠等都可以利用它來控...