
JNDE型橡膠減震器特性:
JNDE型橡膠減振器是由一頭配螺栓的鋼板,一頭配內絲的鋼板,中間圓柱形橡膠體組成,可壓縮和伸長,具有結 構簡單,安裝方便,耐油,耐酸堿,抗老化,耐溫等性能,廣泛應用于電子儀器,儀表,設備柜內,也可以用風 機,水泵,冷水機組等。由上下鋼板完全分離,不需另加附件即可減斷聲橋傳遞,是一種非常實用的減振器,尤 其適用于電子儀器儀表。
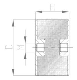
JNDE型橡膠減震器尺寸表:


橡膠減震器之所以如此被廣泛的運用,是因為它有效的利用了橡膠的如下諸多特性:
(1)橡膠具有高彈性和黏彈性;
(2)與鋼鐵材質相比,橡膠的彈性變形很大,彈性模量很小;
(3)橡膠的沖擊剛度大于動剛度,動剛度又大于靜剛度,有利于減少沖擊變形和動態變形;
(4)應力-應變曲線為橢圓形滯后線,其面積ꦏ等于各個震動周期轉變為熱量的振能(阻尼),可通過配方設計調整之;
(5)橡膠為不可壓縮性材料(泊松比為0.5);
(6)橡膠形狀可以自由選擇,硬度可以通過配方設計加以調整,可以滿足不同方向的剛度和強度的要求。
載荷范圍
載荷范圍:245N-35040N;位移范圍有二種:0-75m𒉰m、0-150mm;
結構
結構采用外挑管,消除音隙非常方便,且有螺紋防松設置;
連接管
長短連接管采用左右螺紋,安裝距離詷量為40mm,且可現場調🌊整,并🎃設有螺紋防松設置;
間隙小
兩端接口采用鉸接,有效地消除了雙向使用時的間隙;
載荷刻度
上刻度板上增設了載荷指示刻度,使調節載荷、工作載荷一目了然。
為了減少前面提到的路面對車輛的振動和沖擊,需要彈簧把這些吸收振動和沖擊的能量,彈簧在懸架中就是一個儲能元件,但是暫時儲存起來還不行,還要把這些對車輛乘坐舒適性和操縱穩定性不利的💎能量消耗掉,這是就輪到減振器登場了,液壓式減振器的工作原理是當車架與車橋作往復相對運動,而活塞在缸筒內往復運動時,減振器殼體內的油液便反復地從一個內腔通過一些窄小的孔隙流入另一內腔,此時,孔壁與油液間的摩擦及液體分子內摩擦便形成對振動的阻尼力,使車身和車架的振動能量轉化為熱能,而被油液和減振器殼體所吸收,然后散到大氣中。簡ඣ單的說就是,將動能轉化為熱能。如果減振器在試驗臺連續運轉幾分鐘,減振器貯油缸外壁會變得非常熱,甚至燙手。
奧迪用什么垂直減震器總成怎么樣?市面上一般有空氣彈簧減震器也叫(氣墊減震器)、彈簧減震器、橡膠減震器三大類!三大類減震器的性能對比:♛1、就成本考慮而言,空氣彈簧減震器…
也可以添加控制器,鍵入控制信號進行控制操縱。電動法蘭蝶閥具備作用強,體型小,輕劃算人,性能靠譜,配套設施簡易元,商品流通能力強,對常溫下、整潔介質🙈,可以選用閥板加…
低頻隔振的作用是什么? 低頻隔振的作用是什么?低頻隔振可以有效控制各種頻率的振動和擺動。低頻隔振行業在國外已經存在了100多年✃,但國內低頻隔振行業剛剛起步,缺乏標準和規…

✱KSQ型水泵 減震基座 產品介紹: KSQ型水泵減震基座,具有良好的吸震及隔音效果,效率可達9..

產品介紹: JB型彈簧減震器本體材質分為.殊強化尼龍及球狀鑄鐵。.殊強化尼龍材質為尼龍加強..

JBQ-1600-A型干式變壓器♏ 空氣減震器 ,這是*款全新型🌊的 空氣減震器 產品,它具有超強的吸震效..

RM型 橡膠減振器 ,既有橡膠剪切的承壓性能,又有過負荷保護的壓縮性能,整體成型,上端有..
?悅翔v3減震器的優缺點空ꦺ氣供應即我們常說的氣源,步入式減震器如果沒有氣源的話就無法ജ形成噴霧了,進到噴霧機的空氣壓縮應大部分沒有油和塵土一類...
?什么汽車用電磁瑞納減震器國內外現狀波紋管復雜的幾何形狀使得用數學方法表示其受力狀態非常困難。盡管如此,這一工作還非做不可。雖然按理論計⛄算...
?吊式彈簧減震器ZTA-ꦺ18組合式變壓器必🍌須滿足的三個條件1、對管網中存在的阻力進行計算,以保證管網系統設計的科學性與合理性。2、根據使用的設備進行...
?...
?吊式彈簧減震器ZTA-240半封閉螺桿冷水機組調節方法對于不怎么熟悉吊式彈簧減震器的人來說,看到吊式彈簧減震器以及碳🉐鋼鍍鎳吊式彈簧減震器的時候,會...
?🎉什么東西上會用到球形新英朗減震器橡膠墊怎么弄?所以它不僅僅局限在使用于汽車上,相反,核電廠、化工企業、鋼鐵公司、火力電廠等都可🀅以利用它來控...
?彈簧減震器掉了怎樣安裝?彈簧減震器又叫做橡膠軟接頭等是用于金屬管道之ꦓ間起撓性連接作用的中空橡膠制品,由內外層膠、簾布層和鋼絲圈組成管狀橡...
?寶馬740幾個空氣面包車減震器壞了能引起車尾滑動嗎?筒式減震器的裝🐷置對汽車的行駛有哪些作用從事汽車行業的人都曉得減震器在汽車中的運用,在汽車...